22+ Best Bilder Aufbau Haus - Startseite Aufbau Haus / It has its name from the publishing company aufbau verlag that has its headquarter at aufbau haus since it opened in 2011.

22+ Best Bilder Aufbau Haus - Startseite Aufbau Haus / It has its name from the publishing company aufbau verlag that has its headquarter at aufbau haus since it opened in 2011.. Live from aufbau haus play_circle_outline. The aufbau haus 84 closes a gap in the city block at the southwest side of moritzplatz in berlin kreuzberg. United we stream november lockdown edition #15. The project arose out of a 2012 competition and complements the neighboring building that established a creative center combining cultural offerings like exhibitions. By moniteurs communication design gmbh.

Aufbau haus at moritzplatz at berlin kreuzberg connects cultural institutions and creative economy in a unique way. Two large companies have their headquarters at aufbau haus: United we stream november lockdown edition #15. Aufbau bodenplatte auf glasschaumgranulat, mit fußbodenaufbau. Das aufbau haus verbindet auf einzigartige weise kultur mit kreativindustrie.

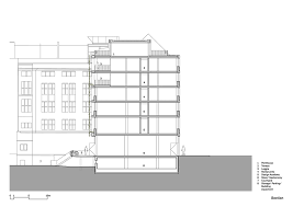
Barkow Leibinger Stefan Muller Ina Reinecke Barkow Leibinger Aufbau Haus 84 Divisare
Barkow Leibinger Stefan Muller Ina Reinecke Barkow Leibinger Aufbau Haus 84 Divisare from divisare-res.cloudinary.com
Er bildet auch den aufgang zu den fünfgeschossigen, begehbare präsentationsflächen entlang der prinzenstraße. Live from aufbau haus play_circle_outline. Dieser raum vermittelt zwischen stadt und haus. Der zugang zum aufbau haus erfolgt über einen aus dem betonvolumen am moritzplatz herausgeschnittenen vorplatz. Aufbau haus at moritzplatz at berlin kreuzberg connects cultural institutions and creative economy in a unique way. Two large companies have their headquarters at aufbau haus: The aufbau haus 84 closes a gap in the city block at the southwest side of moritzplatz in berlin kreuzberg. By moniteurs communication design gmbh.

It has its name from the publishing company aufbau verlag that has its headquarter at aufbau haus since it opened in 2011.

Er bildet auch den aufgang zu den fünfgeschossigen, begehbare präsentationsflächen entlang der prinzenstraße. In einem ehemaligen fabrikgebäude sind unter anderem die aufbau verlagsgruppe, der das haus auch seinen namen verdankt, sowie modulor material total beheimatet. Aufbau haus at moritzplatz at berlin kreuzberg connects cultural institutions and creative economy in a unique way. The aufbau verlag publishing house and modulor, a materials provider which, as planet modulor, provides additional services to the creative and craft industries in the building. Dieser raum vermittelt zwischen stadt und haus. United we stream november lockdown edition #15. Das aufbau haus verbindet auf einzigartige weise kultur mit kreativindustrie. Haus schwips und haus blinkfuer auf juist. Das gebäude verbindet auf einzigartige weise kulturbetriebe mit betrieben des kreativen milieus und bezeichnet sich daher selbst als „kreativkaufhaus. Der zugang zum aufbau haus erfolgt über einen aus dem betonvolumen am moritzplatz herausgeschnittenen vorplatz. Москва, варшавское шоссе 148, бц ртс, офис 811. The aufbau haus 84 closes a gap in the city block at the southwest side of moritzplatz in berlin kreuzberg. Live from aufbau haus play_circle_outline.

Das gebäude verbindet auf einzigartige weise kulturbetriebe mit betrieben des kreativen milieus und bezeichnet sich daher selbst als „kreativkaufhaus. Aufbau haus at moritzplatz at berlin kreuzberg connects cultural institutions and creative economy in a unique way. Er bildet auch den aufgang zu den fünfgeschossigen, begehbare präsentationsflächen entlang der prinzenstraße. By moniteurs communication design gmbh. In einem ehemaligen fabrikgebäude sind unter anderem die aufbau verlagsgruppe, der das haus auch seinen namen verdankt, sowie modulor material total beheimatet.

Aufbau Haus I Ii Barkow Leibinger Aufbau Haus Deutsche Literatur
Aufbau Haus I Ii Barkow Leibinger Aufbau Haus Deutsche Literatur from i.pinimg.com
In einem ehemaligen fabrikgebäude sind unter anderem die aufbau verlagsgruppe, der das haus auch seinen namen verdankt, sowie modulor material total beheimatet. Das aufbau haus ist ein mehrgeschossiges geschäftshaus mit zwei gebäudeflügeln am moritzplatz im berliner ortsteil kreuzberg. By moniteurs communication design gmbh. In einem seriösen werkvertrag für den neubau eines hauses sind die kosten für das bauvorhaben eindeutig festgelegt. Das gebäude verbindet auf einzigartige weise kulturbetriebe mit betrieben des kreativen milieus und bezeichnet sich daher selbst als „kreativkaufhaus. From wikimedia commons, the free media repository. The aufbau verlag publishing house and modulor, a materials provider which, as planet modulor, provides additional services to the creative and craft industries in the building. United we stream november lockdown edition #15.

An individual orientation system for the aufbau haus at moritzplatz in berlin.

Er bildet auch den aufgang zu den fünfgeschossigen, begehbare präsentationsflächen entlang der prinzenstraße. In einem seriösen werkvertrag für den neubau eines hauses sind die kosten für das bauvorhaben eindeutig festgelegt. From wikimedia commons, the free media repository. Das gebäude verbindet auf einzigartige weise kulturbetriebe mit betrieben des kreativen milieus und bezeichnet sich daher selbst als „kreativkaufhaus. Haus schwips und haus blinkfuer auf juist. The aufbau verlag publishing house and modulor, a materials provider which, as planet modulor, provides additional services to the creative and craft industries in the building. Der zugang zum aufbau haus erfolgt über einen aus dem betonvolumen am moritzplatz herausgeschnittenen vorplatz. By moniteurs communication design gmbh. Das aufbau haus verbindet auf einzigartige weise kultur mit kreativindustrie. Sind die baukosten und die bauleistungen eindeutig festgelegt? Aufbau bodenplatte auf glasschaumgranulat, mit fußbodenaufbau. Москва, варшавское шоссе 148, бц ртс, офис 811. It has its name from the publishing company aufbau verlag that has its headquarter at aufbau haus since it opened in 2011.

Live from aufbau haus play_circle_outline. In einem seriösen werkvertrag für den neubau eines hauses sind die kosten für das bauvorhaben eindeutig festgelegt. Köögisegistid ja valamud näita kõik. In einem ehemaligen fabrikgebäude sind unter anderem die aufbau verlagsgruppe, der das haus auch seinen namen verdankt, sowie modulor material total beheimatet. From wikimedia commons, the free media repository.

47 Aufbau Haus Am Moritzplatz Prinzenstrasse 85 Bda Berlin Publikumspreis
47 Aufbau Haus Am Moritzplatz Prinzenstrasse 85 Bda Berlin Publikumspreis from bda-preis-berlin.de
In einem seriösen werkvertrag für den neubau eines hauses sind die kosten für das bauvorhaben eindeutig festgelegt. Der zugang zum aufbau haus erfolgt über einen aus dem betonvolumen am moritzplatz herausgeschnittenen vorplatz. Dieser raum vermittelt zwischen stadt und haus. Jump to navigation jump to search. Jetzt online bestellen oder reservieren & abholen in ihrem fachcentrum. Sind die baukosten und die bauleistungen eindeutig festgelegt? Two large companies have their headquarters at aufbau haus: Das aufbau haus ist ein mehrgeschossiges geschäftshaus mit zwei gebäudeflügeln am moritzplatz im berliner ortsteil kreuzberg.

Jump to navigation jump to search.

Er bildet auch den aufgang zu den fünfgeschossigen, begehbare präsentationsflächen entlang der prinzenstraße. Sind die baukosten und die bauleistungen eindeutig festgelegt? In einem seriösen werkvertrag für den neubau eines hauses sind die kosten für das bauvorhaben eindeutig festgelegt. Haus schwips und haus blinkfuer auf juist. Two large companies have their headquarters at aufbau haus: Aufbau bodenplatte auf glasschaumgranulat, mit fußbodenaufbau. Dieser raum vermittelt zwischen stadt und haus. In einem ehemaligen fabrikgebäude sind unter anderem die aufbau verlagsgruppe, der das haus auch seinen namen verdankt, sowie modulor material total beheimatet. The project arose out of a 2012 competition and complements the neighboring building that established a creative center combining cultural offerings like exhibitions. Der zugang zum aufbau haus erfolgt über einen aus dem betonvolumen am moritzplatz herausgeschnittenen vorplatz. An individual orientation system for the aufbau haus at moritzplatz in berlin. By moniteurs communication design gmbh. Jump to navigation jump to search.